“与您相遇,绝非偶然”,非常感谢您能在互联网浩瀚的信息中点击进入“华鼎”官方网站,如果能为您提供【BBY(SSJB-3)双调节压盖式松套限位伸缩器】方面的技术服务,将是华鼎人的荣幸!接下来您将看到的是华鼎BBY(SSJB-3)双调节压盖式松套限位伸缩器技术专家为您精心准备的BBY(SSJB-3)双调节压盖式松套限位伸缩器全面的技术信息,希望对您的选择能有帮助!
尊敬的顾客朋友,欢迎您光临河南华鼎供水材料有限公司的专业网站。可能您已经浏览了多家同行网站,令您眼花缭乱,但华鼎公司真诚请您留步,邀您认真了解华鼎公司实力,我们以“真诚”、“真实”、“信誉”、“热情”回报您的信赖,诚迎您实地考察,相信华鼎品质,经得起考验!专业免费热线【400-6596-332】。
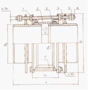
限位伸缩器是在松套伸缩器原有性能的基础上,增设限位装置,在最大伸缩量处用双螺母锁定。这样就实现管道在允许的伸缩量中可以自由的伸缩,一旦超过其最大伸缩量,就起到限位,这样就有效的确保管道的安全运行,特别适用于有振动或有一定斜度及在拐弯的管路中的连接。


| 序号 | 名称 | 数量 | 材料 |
| 1 | 压盖 | 2 | QT400-15、Q235A、ZG230-450、20 |
| 2 | 套筒 | 1 | Q235A、20、16Mn |
| 3 | 密封圈 | 2 | NBR |
| 4 | 限位短管 | 2 | Q235A、20、16Mn |
| 5 | 螺母 | Tn | Q235A、35、1Cr18Ni9Ti |
| 6 | 长螺母 | n | Q235A、35、1Cr18Ni9Ti |
| 7 | 螺柱 | n | Q235A、35、1Cr18Ni9Ti |
| 序号 | 名称 | 数量 | 材料 |
如果您是SSJB-3(BY)型压盖式限位伸缩器的客户,或者在SSJB-3(BY)型压盖式限位伸缩器的使用方面有什么问题,请即刻拿起您的电话,拨打管道伸缩器专家咨询电话:【0371-64031332】手机:【13903859591】,我们将为您免费提供管道伸缩器应用的专业解决方案!即刻拨打,了解更多,相信与“华鼎”的沟通一定对您的选择有所帮助!欢迎各界新老朋友光临我们的网站:www.hdssq.com, www.4006596332.com
废话少说,实事多干!再高大上的说辞和包装策划都比不过踏实点在产品上做点事情!华鼎人以日积月累的点滴行动沉淀【BBY(SSJB-3)双调节压盖式松套限位伸缩器】的品牌价值!相识是缘,合作是份,相信各位有缘人一定能找到理想的合作伙伴!心情愉快,事业必成,祝福您!





