“与您相遇,绝非偶然”,非常感谢您能在互联网浩瀚的信息中点击进入“华鼎”官方网站,如果能为您提供【BF型单法兰松套限位伸缩器】方面的技术服务,将是华鼎人的荣幸!接下来您将看到的是华鼎BF型单法兰松套限位伸缩器技术专家为您精心准备的BF型单法兰松套限位伸缩器全面的技术信息,希望对您的选择能有帮助!
尊敬的顾客朋友,欢迎您光临河南华鼎供水材料有限公司的专业网站。可能您已经浏览了多家同行网站,令您眼花缭乱,但华鼎公司真诚请您留步,邀您认真了解华鼎公司实力,我们以“真诚”、“真实”、“信誉”、“热情”回报您的信赖,诚迎您实地考察,相信华鼎品质,经得起考验!专业免费热线【400-6596-332】。
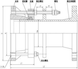
产品介绍:
单法兰松套限位伸缩器,型号BF/VSSJA-1或BF型,单法兰松套限位伸缩器是由松套伸缩接头和一个限位短管组合而成。单法兰松套限位伸缩器能防止管道因超量位移导致补偿接头的泄漏或损坏,主要用于在允许位移范围内吸收轴向位移和承受轴向压力推力的管道松套连接。
应用范围:
BF型单法兰松套限位伸缩器,产品适用于输送海水、淡水、冷热水、饮用水、生活污水、原油、燃油、润滑油、成品油、空气、煤气、温度不高于250度的蒸汽和颗粒粉状等介质。
单法兰松套限位伸缩器优点:安装方便快捷、密封可靠、维修方便。
单法兰松套限位伸缩器特点:实现了管道一边法兰连接,一边为焊接的不一致性的方便连接.


| 序号 | 名称 | 数量 | 材料 |
| 1 | 本体 | 1 | QT400-15、Q235A、ZG230-450、20 |
| 2 | 密封圈 | 1 | NBR |
| 3 | 压盖 | 1 | QT400-15、Q235A、ZG230-450、20 |
| 4 | 限位短管法兰 | 1 | Q235A、20、16Mn |
| 5 | 螺母 | 4n | Q235A、20、1Cr18Ni9Ti |
| 6 | 长螺柱 | n | Q235A、35、1Cr18Ni9Ti |
| 7 | 螺柱 | n | Q235A、35、1Cr18Ni9Ti |
| 公称通径 | 管子外径 | 外形尺寸 | 伸缩量 | 法兰连接尺寸 | ||||||
| Dw | L | L1 | 0.6MPa | 1.0MPa | ||||||
| D | D1 | n-d。 | D | D1 | n-d。 | |||||
| 65 | 76 | 340 | 105 | 50 | 160 | 130 | 4-¢14 | 185 | 145 | 4-¢18 |
| 80 | 89 | 190 | 150 | 4-¢18 | 200 | 160 | 8-¢18 | |||
| 100 | 108 | 210 | 170 | 220 | 180 | |||||
| 114 | ||||||||||
| 125 | 133 | 240 | 200 | 8-¢18 | 250 | 210 | ||||
| 140 | ||||||||||
| 150 | 159 | 265 | 225 | 285 | 240 | 8-¢22 | ||||
| 168 | ||||||||||
| 200 | 219 | 320 | 280 | 340 | 295 | |||||
| 250 | 273 | 370 | 335 | 12-¢18 | 395 | 350 |
12-¢22 | |||
| 300 | 325 | 350 | 130 | 65 | 440 | 395 | 12-¢22 | 445 | 400 | |
| 350 | 377 | 490 | 445 | 505 | 460 | 16-¢22 | ||||
| 400 | 426 | 540 | 495 |
16-¢22 | 565 | 515 | 16-¢26 | |||
| 450 | 480 | 595 | 550 | 615 | 565 | 20-¢26 | ||||
| 500 | 530 | 645 | 600 | 20-¢22 | 670 | 620 | ||||
| 600 | 630 | 755 | 705 | 20-¢26 | 780 | 725 | 20-¢30 | |||
| 700 | 720 | 860 | 810 | 24-¢26 | 895 | 840 | 24-¢30 | |||
| 800 | 820 | 590 | 220 | 130 | 975 | 920 | 24-¢30 | 1015 | 950 | 24-¢33 |
| 900 | 920 | 1075 | 1020 | 1115 | 1015 | 28-¢33 | ||||
| 1000 | 1020 | 1175 | 1120 | 28-¢30 | 1230 | 1160 | 28-¢36 | |||
| 1200 | 1220 | 1405 | 1340 | 32-¢33 | 1455 | 1380 | 32-¢40 | |||
| 1400 | 1420 | 1630 | 1560 | 36-¢36 | 1675 | 1590 | 36-¢42 | |||
| 1500 | 1520 | 1730 | 1660 | - | - | - | ||||
| 1600 | 1620 | 1830 | 1760 | 40-¢36 | 1915 | 1820 | 40-¢48 | |||
| 1800 | 1820 | 2045 | 1970 | 44-¢40 | 2115 | 2020 | 44-¢48 | |||
| 2000 | 2020 | 2265 | 2180 | 48-¢42 | 2325 | 2230 | 48-¢48 | |||
| 2200 | 2220 | 2475 | 2390 | 52-¢42 | 2550 | 2440 | 52-¢56 | |||
| 2400 | 2420 | 2685 | 2600 | 56-¢42 | 2760 | 2650 | 56-¢56 | |||
| 2600 | 2620 | 600 | 240 | 150 | 2905 | 2810 | 60-¢48 | 2960 | 2850 | 60-¢56 |
如果您是单法兰松套限位伸缩器的客户,或者在单法兰松套限位伸缩器的使用方面有什么问题,请即刻拿起您的电话,拨打管道伸缩器专家咨询电话:【0371-64031332】手机:【13903859591】,我们将为您免费提供管道伸缩器应用的专业解决方案!即刻拨打,了解更多,相信与“华鼎”的沟通一定对您的选择有所帮助!欢迎各界新老朋友光临我们的网站:www.hdssq.com, www.4006596332.com
废话少说,实事多干!再高大上的说辞和包装策划都比不过踏实点在产品上做点事情!华鼎人以日积月累的点滴行动沉淀【BF型单法兰松套限位伸缩器】的品牌价值!相识是缘,合作是份,相信各位有缘人一定能找到理想的合作伙伴!心情愉快,事业必成,祝福您!





